• FABRIC Image
    © Amy Barkow / Barkow Photo
  • FABRIC Image
    © Amy Barkow / Barkow Photo
  • FABRIC Image
    © Amy Barkow / Barkow Photo
  • FABRIC Image
    © Amy Barkow / Barkow Photo
  • FABRIC Image
    © NEPHEW
  • FABRIC Image
    © Urban Offerings
  • FABRIC Image
    © Urban Offerings
  • FABRIC Image
    © Urban Offerings
  • FABRIC Image
    © Lynch Eisinger Design Architects
  • FABRIC Image
    © Lynch Eisinger Design Architects
  • FABRIC Image
    © NEPHEW
  • FABRIC Image
    © NEPHEW
  • FABRIC Image
    © NEPHEW
  • FABRIC Image
    © NEPHEW
  • FABRIC Image
    © NEPHEW
  • FABRIC Image
    © Lynch Eisinger Design Architects

FABRIC

Image 1 of 16

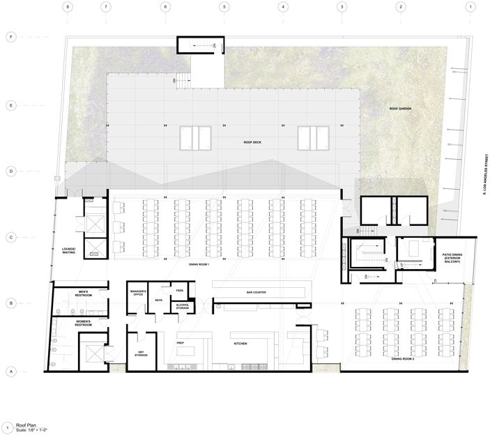
LED converted an existing 5-story garment warehouse in DTLA into a new co-working building with a Food Market on the ground floor and a projecting rooftop restaurant with edible garden on the added 6th floor. The entire structure was fortified to support the rooftop addition and increased occupancy load. The ground floor façade was replaced with an operable “tilt-up” glass storefront and a new steel canopy that extends over the sidewalk and across the entire width of the building. New protruding steel window sleeves materially unify the façade, break down the scale of the building and provides east-facing morning shading. Existing materials have been stripped and sandblasted to reveal the concrete façade and structural columns; new materials of plywood, galvanized and blackened steel as well as fiber cement compliment the existing industrial character of the building while acknowledging the changing trajectory of the neighborhood’s inhabitants. Painted supergraphics on the building's exterior add a subtle reference to the street's emerging art culture. Anticipated completion is Fall 2022.

Project Team

  • John Wheeler
  • Tom Goddeeris
  • Lin Li
  • Ceren Arslan
  • Lisa Cepisul
  • Hung Fai Tang

Client

Undisclosed

Location

Los Angeles

Size

110000 sf

Date

2016

Consultants

  • Lighting Workshop

    Lighting Designer

  • Van Atta Design

    Landscape Architect

  • Englekirk

    Structural Engineer

  • IEG

    MEPS Engineer

  • LED

    Interior Design

  • Swinerton

    General Contractor

  • Omgivning

    Architect of Record

Publications

URBANIZE Los Angeles